CASA JACARANDAS

Proyecto residencial unifamiliar ubicado en Ciudad de México, desarrollado desde la conceptualización hasta la elaboración de proyecto ejecutivo, con próxima etapa de construcción.

La propuesta surge a partir de la necesidad de una pareja que busca consolidar un hogar con visión de crecimiento familiar. El diseño responde a este objetivo mediante una organización espacial que equilibra áreas sociales, privadas y de convivencia, integrando flexibilidad y funcionalidad a lo largo del tiempo.

Desarrollada sobre un terreno de 200 m², la vivienda se organiza en tres niveles. En planta baja se concentran las áreas sociales y de servicio, incluyendo estacionamiento, sala, comedor, cocina, baño, family room, almacén, cuarto de servicio y jardín, generando una relación continua entre interior y exterior.

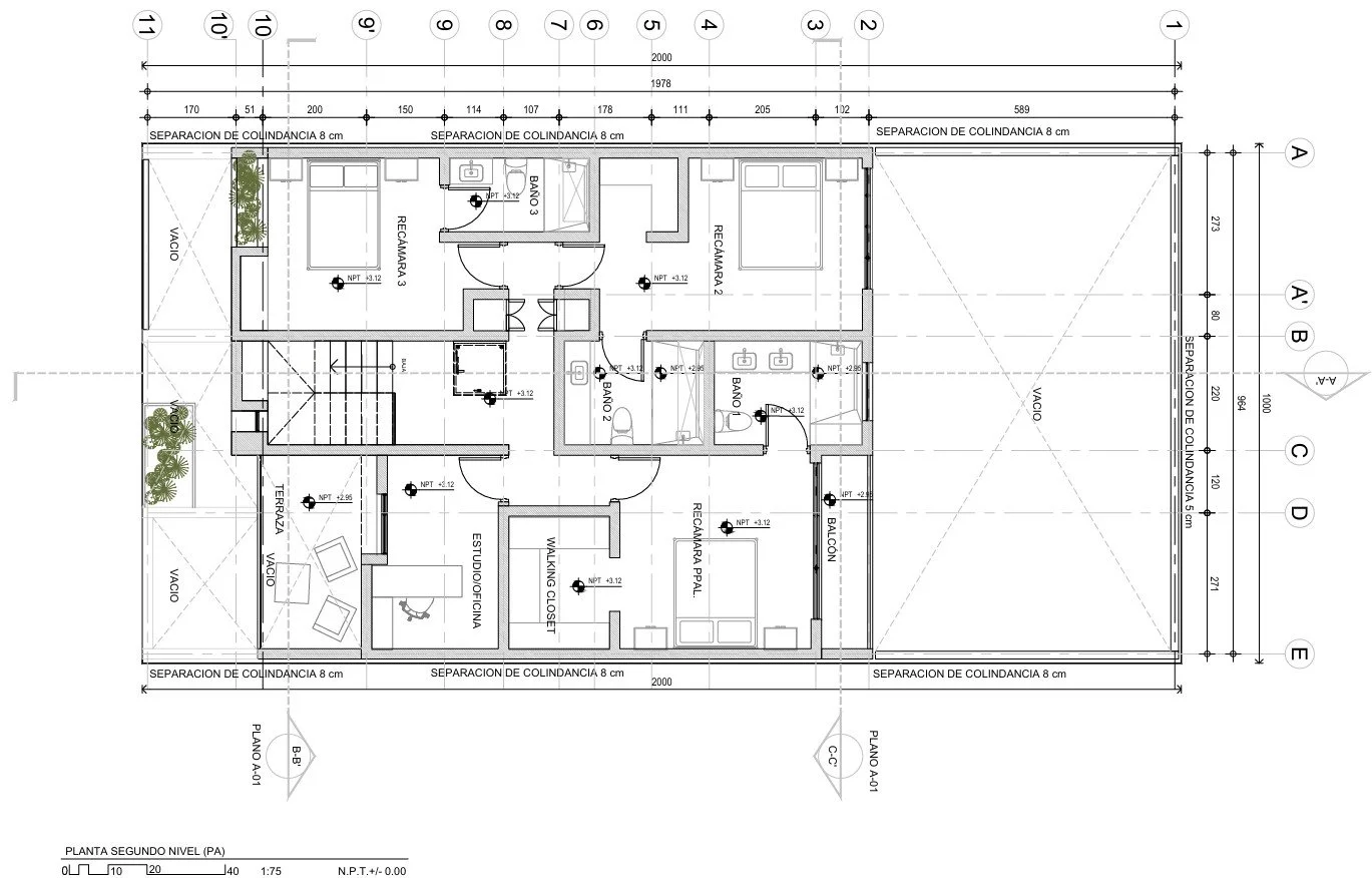
En planta alta se ubican las áreas privadas, conformadas por la recámara principal con vestidor y baño, dos recámaras secundarias con área de guardado y baño propio, así como un estudio/oficina que responde a las dinámicas actuales de trabajo en casa.

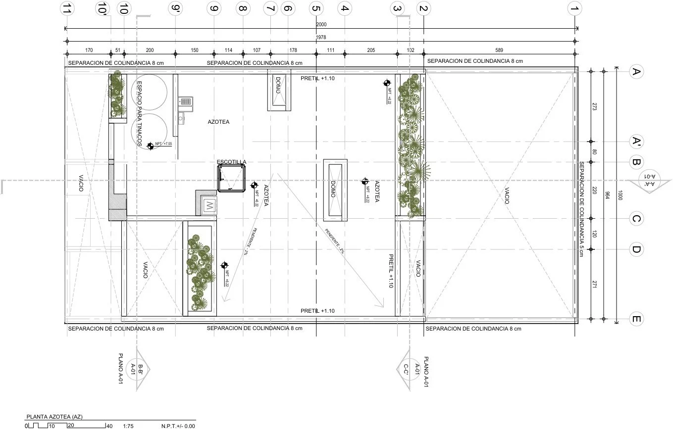
El nivel de azotea se plantea como un espacio de esparcimiento, integrando un roof garden con baño, barra de servicio para asador y una estructura pergolada de acero que proporciona sombra. En este mismo nivel se resuelven los elementos técnicos, como el almacenamiento de agua, integrados de manera discreta dentro del diseño arquitectónico.

El proyecto busca consolidar una vivienda eficiente, adaptable y con una clara intención espacial, lista para su correcta ejecución en obra.

Alcance:
Diseño conceptual, desarrollo de proyecto ejecutivo y coordinación previa a obra.

Previous
Previous

CASA AM TLAYACAPAN

Next
Next

SALTILLO