CASA AM TLAYACAPAN

Residencia de descanso desarrollada de manera integral, desde la conceptualización hasta la ejecución y diseño de mobiliario, ubicada en el fraccionamiento Jardines de Tlayacapan, en Tlayacapan.

El proyecto surge de la necesidad de crear un espacio familiar que funcione como punto de encuentro para distintas generaciones, equilibrando áreas de convivencia con espacios de privacidad y descanso. La propuesta arquitectónica responde a este objetivo mediante una organización clara del programa y una distribución que prioriza la amplitud, la iluminación natural y la relación con el exterior.

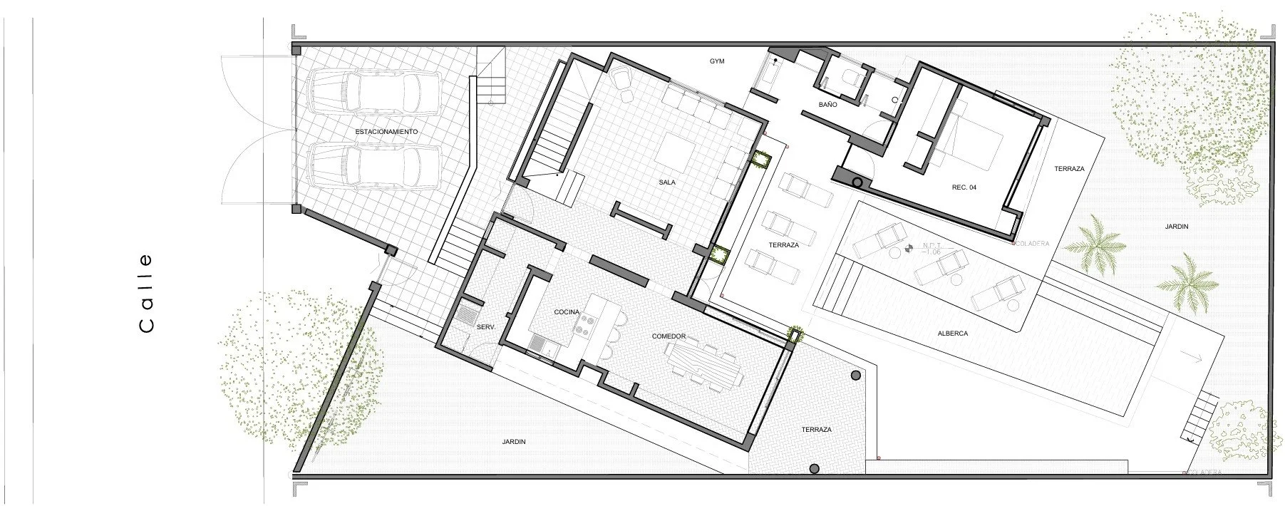
Desarrollada sobre un terreno de 510 m², la vivienda se desplanta en dos niveles. En planta baja se concentran las áreas sociales y de servicio, incluyendo sala, comedor, cocina, gimnasio, terraza con alberca, jardín, baño exterior, cuarto de servicio, despensa, estacionamiento y una habitación de visitas.

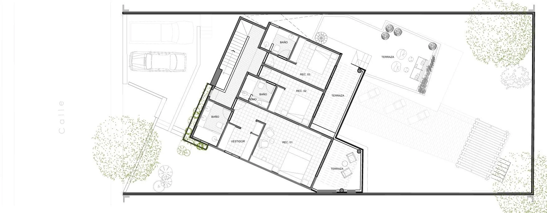
En planta alta se ubican las áreas privadas, integradas por la recámara principal con vestidor y baño con jacuzzi, así como dos recámaras secundarias, cada una con baño propio y acceso a balcón, reforzando la independencia y confort de cada usuario.

El proyecto incorpora soluciones tanto arquitectónicas como constructivas orientadas a optimizar la ejecución en obra, garantizando funcionalidad, durabilidad y coherencia estética en todos sus elementos.

Alcance:
Proyecto integral — diseño conceptual, desarrollo de proyecto ejecutivo, ingenierías, construcción y mobiliario sobre diseño. 
Next
Next

CASA JACARANDAS