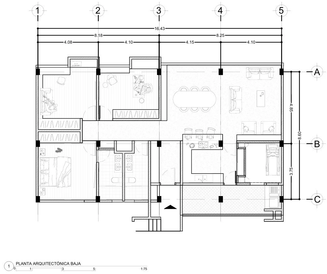
DEDARTAMENTO MATAMOROS
Proyecto intregral en donde de relizo la Arquitectura, Diseño de Interiores y Consruccion del departamaento en la calle matamoros cumpliendo y dando valor a las necesidades de los clientes que habitan el proyecto.
Proyecto intregral en donde de relizo la Arquitectura, Diseño de Interiores y Consruccion del departamaento en la calle matamoros cumpliendo y dando valor a las necesidades de los clientes que habitan el proyecto.